|
1. Центробежные дутьевые вентиляторы одностороннего
всасывания типа ВДН предназначены для подачи воздуха в топки паровых котлов.
Такими тягодутьевыми машинами комплектуются котлы с уравновешенной тягой
паропроизводительностью 1...25 т/ч, а также газомазутные водогрейные котлы
теплопроизводительностью 0,5...16 Гкал/ч.
2. Допускается применение вентиляторов в
технологических установках различных отраслей народного хозяйства для
перемещения чистого воздуха, а также в качестве вентиляторов дымоудаления на
газомазутных котлах с уравновешенной тягой.
3. Тягодутьевые машины предназначены для эксплуатации
при температуре окружающего воздуха не ниже -30°С и не выше +40°С;
максимально допустимая температура перемещаемой среды на входе в вентиляторы
+200°С.
4. Тягодутьевые машины рассчитаны на на
продолжительный режим работы в помещении и на открытом воздухе (вне
помещения под навесом) в условиях умеренного климата (климатическое
исполнение У, категория размещения 2, ГОСТ 15150-69). Допустимая
температура окружающего воздуха не ниже -30°C и не выше +40°C.
5. Центробежные дымососы одностороннего всасывания
типа ДН предназначены для отсасывания дымовых газов из топок котельных
агрегатов, оборудованных эффективно действующими системами золоулавливания,
а также для отсасывания дымовых газов из топок газомазутных котельных
агрегатов.
6. Дымососы ДН и ВДН рассчитаны на продолжительный
режим работы в помещении и на открытом воздухе в условиях умеренного климата
(климатическое исполнение У, категории размещения 1, 2, 3 и 4, ГОСТ
15150-69). Запуск дымососов разрешается при температуре в улитке не ниже
-30°С. Максимальная температура газов на входе в дымососы не должна
превышать +200°С.
7. Для долговечности тягодутьевых машин типа ДН
толщина стенок улиток увеличена по сравнению с тягодутьевыми машинами типа
ВДН.
Параметры
изготавливаемого оборудования:
|
|
- параметры агрегата с
посадкой рабочего колеса на вал двигателя |
|
|
- параметры агрегата с
муфтовым приводом (с ходовой частью) |
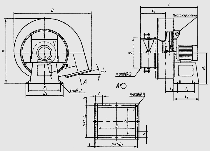
Габаритные, установочные и присоединительные размеры
вентиляторов типа ВДН и ДН.
|
|
- при частоте вращения 1500
об/мин |
|
|
- при частоте вращения 1000
об/мин |
Габаритные, установочные и присоединительные размеры
вентиляторов типа ВДН
Х и ДН Х.

|
|
- при частоте вращения 3000
об/мин |
|
|
- при частоте вращения 1500
об/мин |
|
|
- при частоте вращения 1000
об/мин |
|
|
- при частоте вращения 750
об/мин |
|